Nasza strona korzysta z plików cookie
Serwis w celach prawidłowego funkcjonowania, statystycznych i reklamowych korzysta z plików cookie. Możesz zarządzać plikami cookie z poziomu Twojej przeglądarki. Więcej informacji na temat warunków przechowywania lub dostępu do plików cookies na naszej witrynie znajduje się w polityce prywatności. Wykorzystywane pliki cookies zwiększają prawdopodobieństwo, że reklamy produktów lub usług wyświetlane w ramach usług internetowych, z których korzystasz, będą bardziej dostosowane do Ciebie i Twoich potrzeb. Pliki cookie mogą być wykorzystywane do reklam spersonalizowanych oraz niespersonalizowanych.

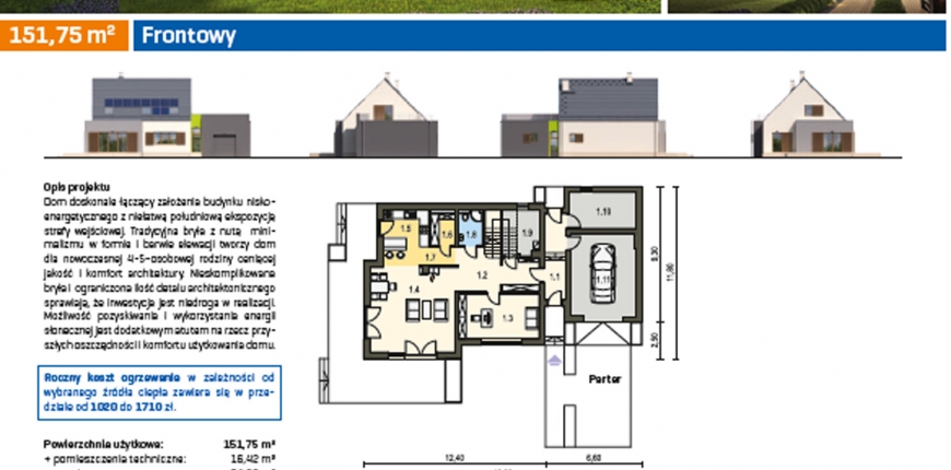
Projekty domów - Frontowy

Projekty domów - Frontowy